Maison moderne en béton – Modèle Nantes
Price
CONNECTEZ-VOUS/INSCRIVEZ-VOUS POUR VOIR LES PRIX INSCRIVEZ-VOUS POUR VOIR LES PRIXDetails
CHAMBRES
SALLES DE BAIN
ÉTAGES
m2
Informations
La maison d’architecte modulaire Nantes est l’une des maisons les plus impressionnantes en termes de design avec un excellent rapport qualité-prix. L’union des modules génère de beaux espaces couverts, marquant l’entrée et la terrasse intérieure. Une architecture caractérielle et dynamique grâce à l’assemblage de volumes forts, disposés en forme de L.
Deux grands modules tournés à 90° offrant une richesse spatiale intérieure en générant des vues croisées, ainsi que des espaces extérieurs couverts de qualité. Chaque pièce profite de vues incroyables sur le jardin. Une orientation sud-est serait l’idéal pour cette maison modèle Nantes.
Le volume du rez-de-chaussée, faisant face à l’accès principal de la parcelle, protège le jardin, la piscine et le porche des vues extérieures, garantissant ainsi une privacité. Les espaces de jour, ainsi qu’une chambre complète se situent en contact direct avec les aménagements extérieurs. Le programme du rez-de-chaussée est complété par un espace polyvalent indépendant se situant au niveau du support du volume supérieur. Cet espace peut servir de bureau ou de chambre d’appoint.
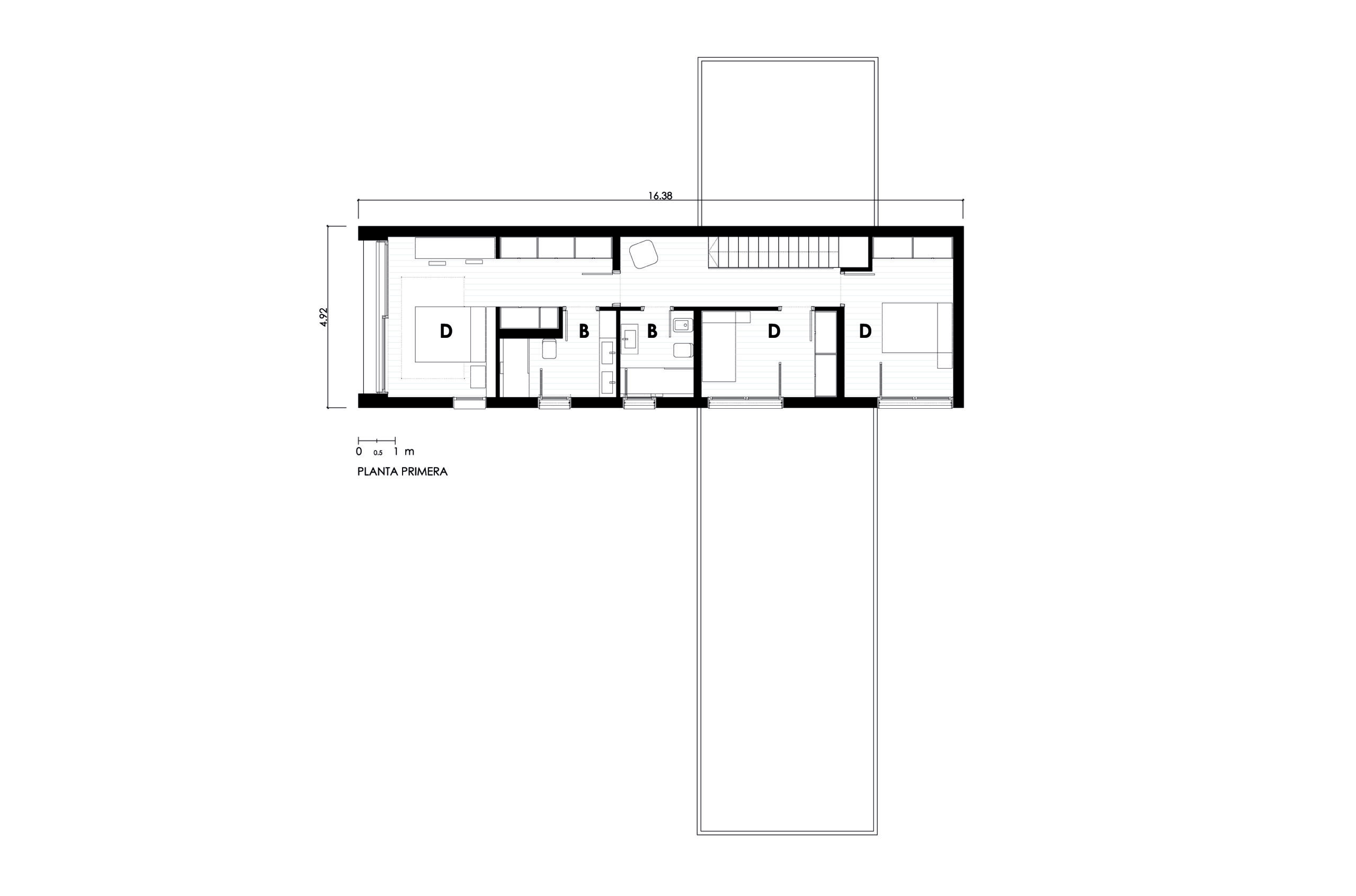
Au premier étage se trouve une chambre parentale spacieuse et aux dimensions très agréables. Deux autres chambres, ainsi qu’une salle de bain complètent le programme de cette maison d’architecte haut de gamme. Chaque espace profite d’une grande luminosité grâce à l’orientation adéquate de la maison et ses grandes ouvertures du sol au plafond.
En comptabilisant la surface habitable, la dépendance et les porches, la maison de taille moyenne de 240 m2 est parfaitement adaptée aux moyennes et grandes parcelles. Au design spectaculaire, cette maison modulaire séduit par son audace et son originalité.
Plans
Rez-de-chaussée
 
						
									Premier étage
 
						
									| SURFACE UTILE | 209,64 m2 | 
| LOGEMENT | 171,75 m2 | 
| PORCHES | 37,89 m2 | 
| REZ-DE-CHAUSSÉE | |
| LOGEMENT | 108,48 m2 | 
| entrée | 3,56 m2 | 
| escalier | 3,38 m2 | 
| salon-salle à manger | 37,71 m2 | 
| cuisine | 17,67 m2 | 
| buanderie | 4,98 m2 | 
| salle de bain 01 | 5.05 m2 | 
| chambre 01 | 12,34 m2 | 
| chambre 02 | 10,20 m2 | 
| bureau | 11,40 m2 | 
| salle de stockage | 2,21 m2 | 
| PORCHES | 37,89 m2 | 
| porche entrée | 26,72 m2 | 
| porche salon-salle à manger | 11,17 m2 | 
| PREMIER ÉTAGE | |
| LOGEMENT | 63,27 m2 | 
| escalier | 3,64 m2 | 
| dégagement | 8,27 m2 | 
| salle de bain 02 | 6,14 m2 | 
| salle de bain 03 | 4,71 m2 | 
| vestiaire | 6,82 m2 | 
| chambre 03 | 8,65 m2 | 
| chambre 04 | 12,27 m2 | 
| chambre parentale | 12,77 m2 | 
| SURFACE CONSTRUITE | 240,84 m2 | 
| LOGEMENT | 202,95 m2 | 
| PORCHES | 37,89 m2 | 
| REZ-DE-CHAUSSÉE | |
| logement | 122,26 m2 | 
| porches | 37,89 m2 | 
| PREMIER ÉTAGE | |
| logement | 80,69 m2 | 
Modèles de maison associés
 
  
                 
  
                 
  
                 
			 English
 English