Three modular houses residential
project

Group of detached houses with private swimming pools.

New promotion of three modular houses underway. A set of three industrialised detached houses located on the same plot, each with its own outdoor space and swimming pool. A project with a total built area of 583 m² for the three houses.

The plans for the three houses are based on the Èze model from our 111 modular house catalogue, with a few minor changes to the layout and aesthetics, but retaining similar materials and finishes. The style is reminiscent of pure Mediterranean architecture, with natural stone used on all the façades and a white single coat of paint.

The clients, two brothers who owned this land, wanted to build a house for each of their respective children. This is why the houses are located on the same plot, but on three different levels. 

These small elevations in the terrain allow each space to be divided in a gentle and natural way. A discreet fence gives each house its privacy and private outdoor space, while integrating them naturally into the terrain. The orientation of each house on the plot is optimised in terms of views and space, ensuring the privacy of each one.

Each dwelling consists of four modules, 95% of which are completed in the factory, including the natural stone façade, and transported by lorry and boat from our factory in Valencia (Spain) to the island of Majorca. 
583

Three modular houses
residential project

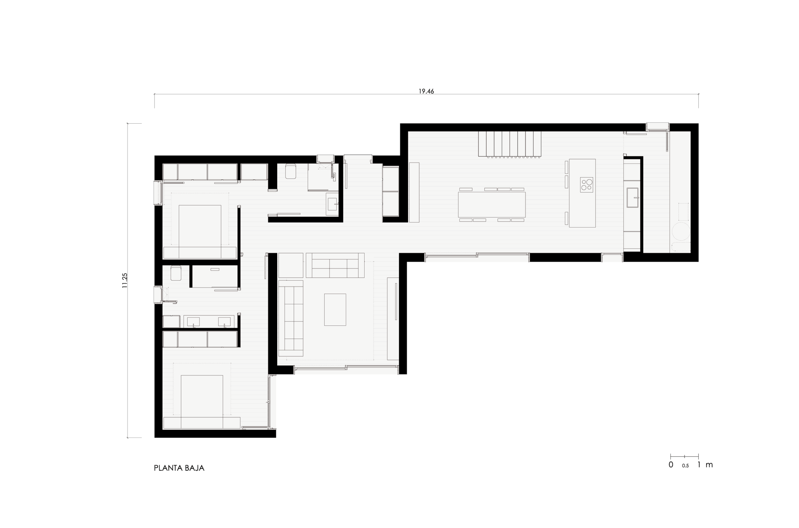
Housing 1 - 219 m²

Located on the highest part of the plot, this is the most spacious house in the development. Its design comprises four modules and a series of canopies that create large porches and shaded areas, giving it a marked horizontal feel. The interior layout includes four bedrooms, three bathrooms, a kitchen, a dining room and a living room, as well as a pantry and a laundry room, allowing for a clear separation between daytime and night-time living spaces.

Plan and layout

Modular housing 1, promotion of modular homes.

Ground floor
First floor
House 2 - 178 m²

Located in the centre of the plot, this house has an L-shape and a more compact aesthetic. It consists of four modules and a pergola that delimits the outdoor space. Its interior layout organises the living space in one wing of the ground floor, while the sleeping area is divided between the other wing of the ground floor and the upper floor. It has three bedrooms, three bathrooms and a study, making it the only one of the three to include a separate workspace.

Plan and layout

Logement modulaire 2, promotion de maisons industrialisées à Ibiza

Ground floor
First floor
Housing 3 - 186 m²

The third house also comprises four modules and an outdoor pergola, with a layout spread over two floors. On the ground floor are two bedrooms, a bathroom, a laundry room and a common area comprising the kitchen, dining room and living room. Upstairs, two further bedrooms share a third bathroom, making a total of four bedrooms and three bathrooms. The whole property combines functionality and space, adapting to the terrain and making the most of the view and orientation.

Plan and layout

Prefabricated house 3, promotion of industrialised housing

Ground floor
First floor
On-site assembly

Promotion of modular housing in Ibiza, three houses each consisting of four modules. The modules and awnings were transported by lorry and boat on three different days. They were installed as they were manufactured in the factory.

Advantage of relocating your project

The benefits of relocating the construction of your residential property development

The ability to relocate construction is one of the major advantages of the inHAUS industrialised system, particularly for developers seeking agility, control and quality across the country. 
 
Thanks to our construction model, we can manufacture up to 95% of each home in our factory in Valencia, under controlled conditions. This minimises unforeseen events on site, execution times in the field and associated costs. 
 
For developers, this represents a radical transformation in the way the process is managed: dependence on local labour is eliminated, deadlines are optimised through precise planning, and a high level of quality is guaranteed from the design phase through to delivery. 
 
In addition, the inHAUS model offers complete technical traceability, with a single point of contact and no disconnect between design, construction and execution. This translates into increased profitability, enhanced safety and a significant reduction in return on investment times.

Contact us

Whether you are a private individual or a professional, please do not hesitate to contact us for further information, to request a personalised quote or for any other questions.