Maison méditerranéenne haut de gamme – Modèle Saint-Tropez
Price
CONNECTEZ-VOUS/INSCRIVEZ-VOUS POUR VOIR LES PRIX INSCRIVEZ-VOUS POUR VOIR LES PRIXDetails
CHAMBRES
SALLES DE BAIN
ÉTAGES
m2
Informations
Le modèle Saint Tropez est une maison d’architecte construite avec le système EMOHA, combinant la robustesse du béton et la polyvalence des espaces ouverts. Composée de deux étages, votre future maison répond aux attentes les plus élévées en matière de design, de qualité spatiale et de finitions.
Les lignes graphiques de la façade de ce modèle de maison modulaire génère une figure sinueuse, caractéristique d’une architecture moderne et intemporelle.
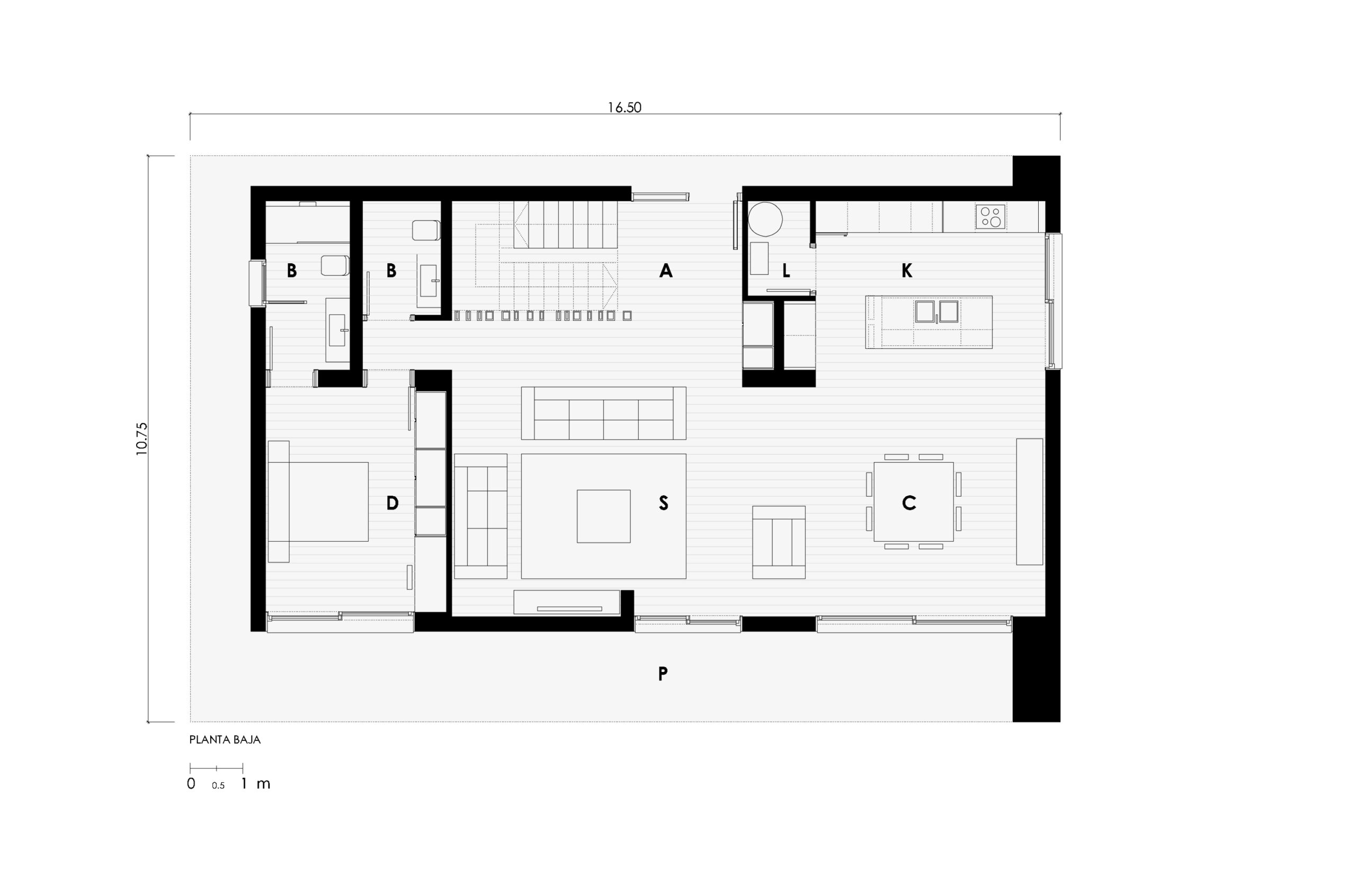
La maison haut de gamme modèle Saint-Tropez comprend un grand espace de vie, composé d’un salon, d’une salle à manger et d’une cuisine s’orientant vers le jardin. Le programme du rez-de-chaussée est completé par une grande chambre avec dressing, une salle de bain spatieuse et complète, ainsi qu’un buanderie ou cellier. La dimension et l’organisation de cette maison permettent une grande polyvalence fonctionnelle et spatiale.
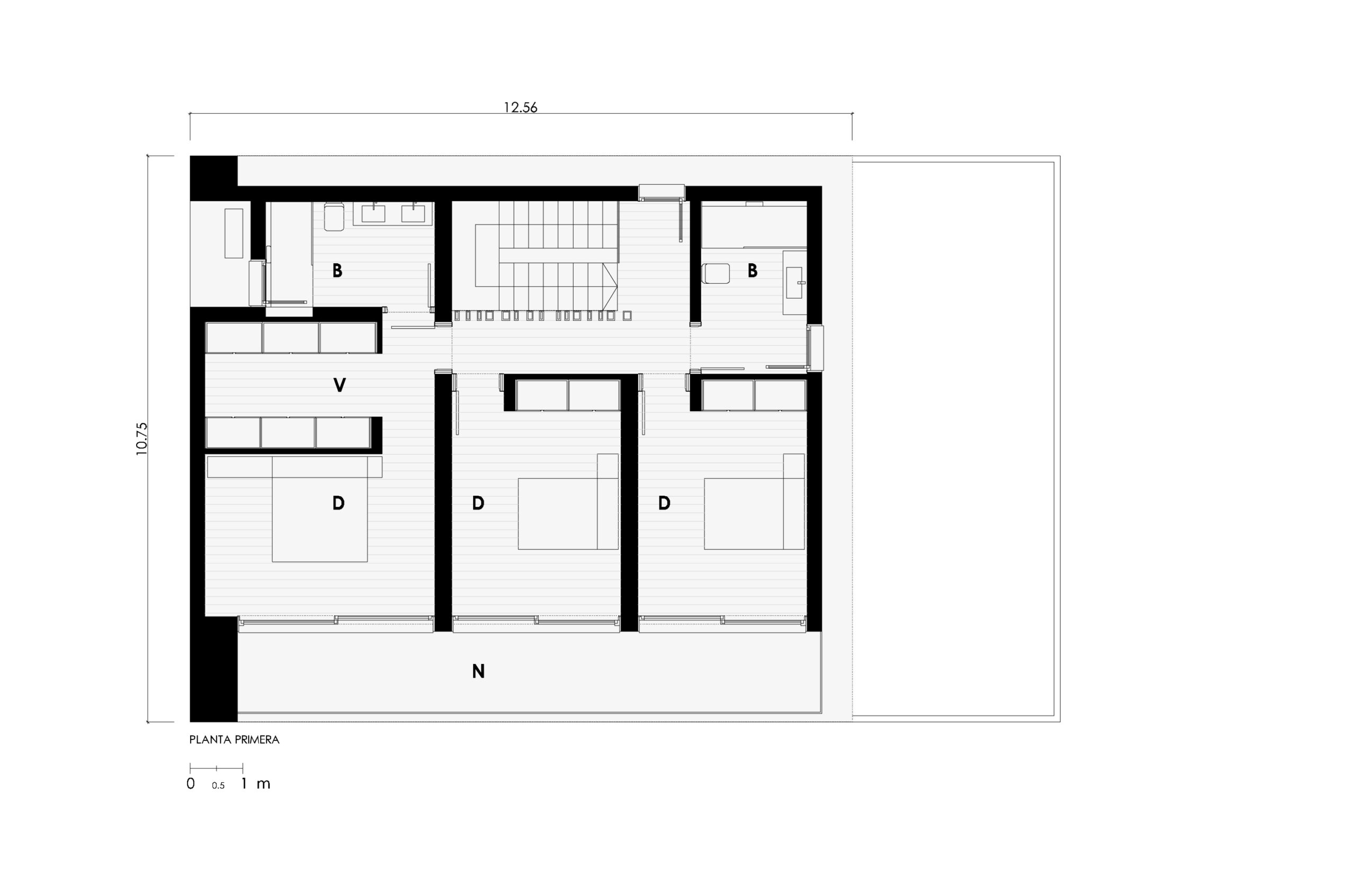
À l’étage se trouve l’espace de nuit avec une chambre parentale avec dressing et sa propre salle de bain, ainsi que deux chambres se partageant une salle de bain. Chaque chambre possède des espaces de rangement et profite de grandes ouvertures, apportant ainsi une belle lumière naturelle et des vues ciblées vers le jardin. Un grand porche connecte les chambres entre elles et permet une prolongation des espaces vers l’extérieur.
La maison modulaire modèle Saint-Tropez séduit par la subtilité de ses formes, ainsi que son design moderne et élégant.
Plans
Rez-de-chaussée

Premier étage

SURFACE UTILE | 270,85 m2 |
LOGEMENT | 189,54 m2 |
PORCHES | 81,31 m2 |
REZ-DE-CHAUSSÉE | |
LOGEMENT | 104,37 m2 |
entrée-escalier | 12,38 m2 |
salon-salle à manger | 49,82 m2 |
cuisine | 12,92 m2 |
buanderie | 6,70 m2 |
salle de bain 01 | 6,05 m2 |
vestiaire 01 | 5,00 m2 |
chambre 01 | 11,50 m2 |
PORCHES | 50,19 m2 |
porche 01 | 50,19 m2 |
PREMIER ÉTAGE | |
LOGEMENT | 85,17 m2 |
dégagement-escalier | 14,64 m2 |
salle de bain 02 | 4,58 m2 |
chambre 02 | 19,67 m2 |
chambre 03 | 13,33 m2 |
chambre parentale | 15,56 m2 |
vestiaire parentale | 9,22 m2 |
salle de bain parentale | 8,17 m2 |
PORCHES | 31,12 m2 |
porche 02 | 31,12 m2 |
SURFACE CONSTRUITE | 308,62 m2 |
LOGEMENT | 227,31 m2 |
PORCHES | 81,31 m2 |
REZ-DE-CHAUSSÉE | |
logement | 121,71 m2 |
porches | 50,19 m2 |
PREMIER ÉTAGE | |
logement | 105,60 m2 |
porches | 31,12 m2 |
Modèles de maison associés


