Maison préfabriquée high-tech – Modèle Lyon
Price
CONNECTEZ-VOUS/INSCRIVEZ-VOUS POUR VOIR LES PRIX INSCRIVEZ-VOUS POUR VOIR LES PRIXDetails
CHAMBRES
SALLES DE BAIN
ÉTAGES
m2
Informations
Une maison au style contemporain avec une richesse spatiale dans toutes ses pièces. Des lignes prononcées marquant le design Lyon, introduisant un caractère moderne et dynamique.
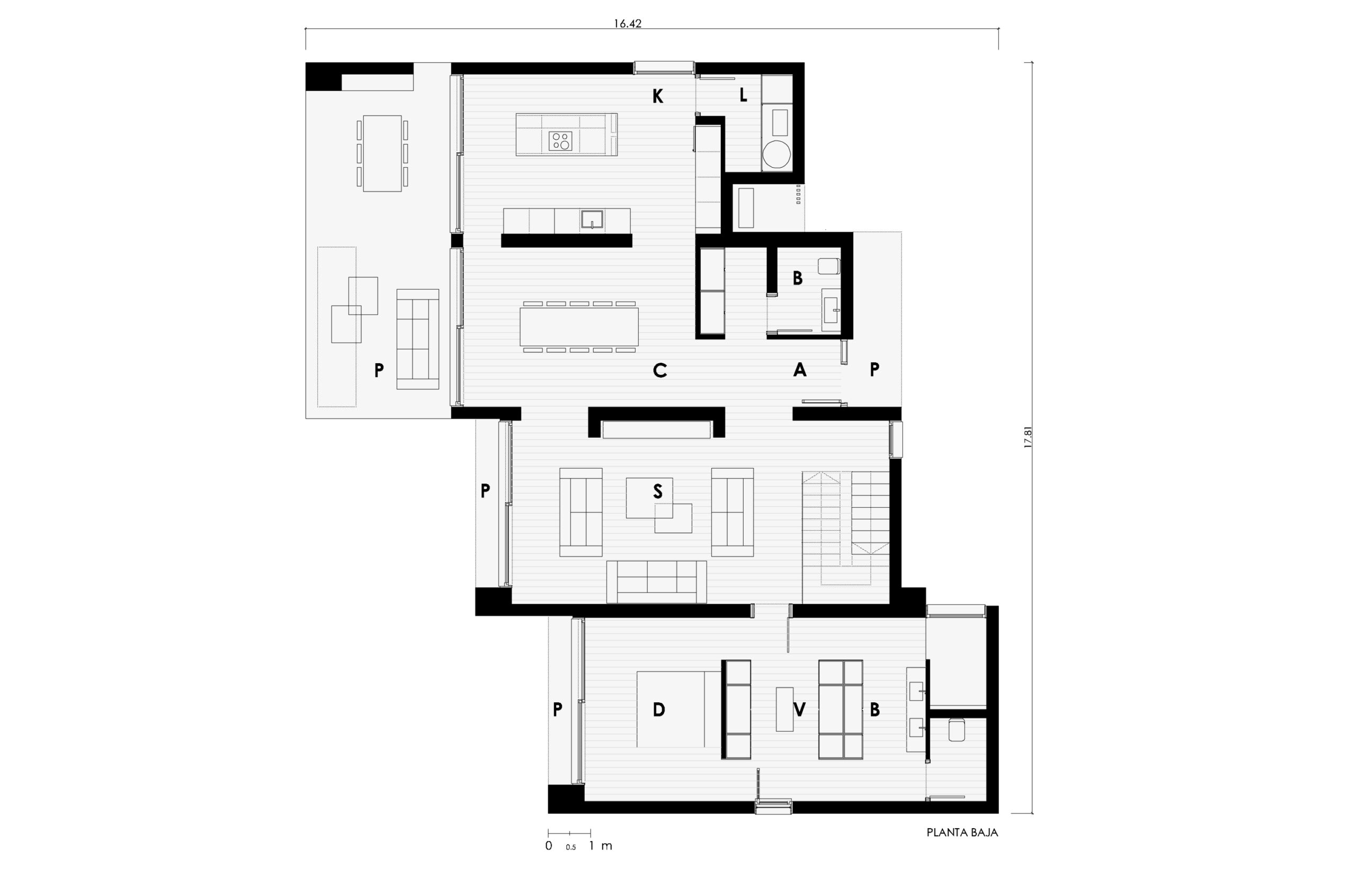
La maison du modèle Lyon sur deux niveaux dispose au rez-de-chaussée d’un grand espace de jour, dans lequel la fonctionnalité et l’espace se modifient et s’adaptent tout au long de la journée en fonction des besoins du moment. Des espaces indépendants dans le salon, la salle à manger et la cuisine, mais visuellement liés pour obtenir une plus grande sensation d’espace.
Au rez-de-chaussée se trouve une grande chambre parentale, avec son propre dressing et une salle de bain spacieuse et privative, répondant à toutes les attentes. Le programme de la zone de nuit de la maison Lyon est completé à l’étage, grâce à trois grandes chambres et une salle de bain.
Plans
Rez-de-chaussée
Premier étage
| SURFACE UTILE | 264,57 m2 |
| LOGEMENT | 211,65 m2 |
| PORCHES | 52,92 m2 |
| REZ-DE-CHAUSSÉE | |
| LOGEMENT | 140,10 m2 |
| entrée-escalier | 12,70 m2 |
| salon | 39,35 m2 |
| salle à manger | 21,90 m2 |
| cuisine | 20,85 m2 |
| buanderie | 4,50 m2 |
| toilette | 3,00 m2 |
| chambre parentale | 13,70 m2 |
| vestiaire parentale | 12,60 m2 |
| salle de bain parentale | 11,50 m2 |
| PORCHES | 37,22 m2 |
| porche 01 | 3,96 m2 |
| porche entrée | 3,96 m2 |
| porche salon-salle à manger | 29,30 m2 |
| PREMIER ÉTAGE | |
| LOGEMENT | 71,55 m2 |
| dégagement-escalier | 15,55 m2 |
| salle de bain | 4,80 m2 |
| chambre 01 | 12,60 m2 |
| chambre 02 | 19,30 m2 |
| chambre 03 | 19,30 m2 |
| PORCHES | 15,70 m2 |
| porche | 15,70 m2 |
| SURFACE CONSTRUITE | 310,47 m2 |
| LOGEMENT | 256,19 m2 |
| PORCHES | 54,28 m2 |
| REZ-DE-CHAUSSÉE | |
| logement | 169,50 m2 |
| porches | 38,54 m2 |
| PREMIER ÉTAGE | |
| logement | 86,69 m2 |
| porches | 15,74 m2 |
Modèles de maison associés
English