Maison design en pierre et bois naturels – Modèle Menton
Price
CONNECTEZ-VOUS/INSCRIVEZ-VOUS POUR VOIR LES PRIX INSCRIVEZ-VOUS POUR VOIR LES PRIXDetails
4
CHAMBRES
CHAMBRES
4
SALLES DE BAIN
SALLES DE BAIN
2
ÉTAGES
ÉTAGES
283
m2
m2
Style: Chaleur méditerranéenne
Typologie: forme en H
Volumétrie: Conception en forme de L
Informations
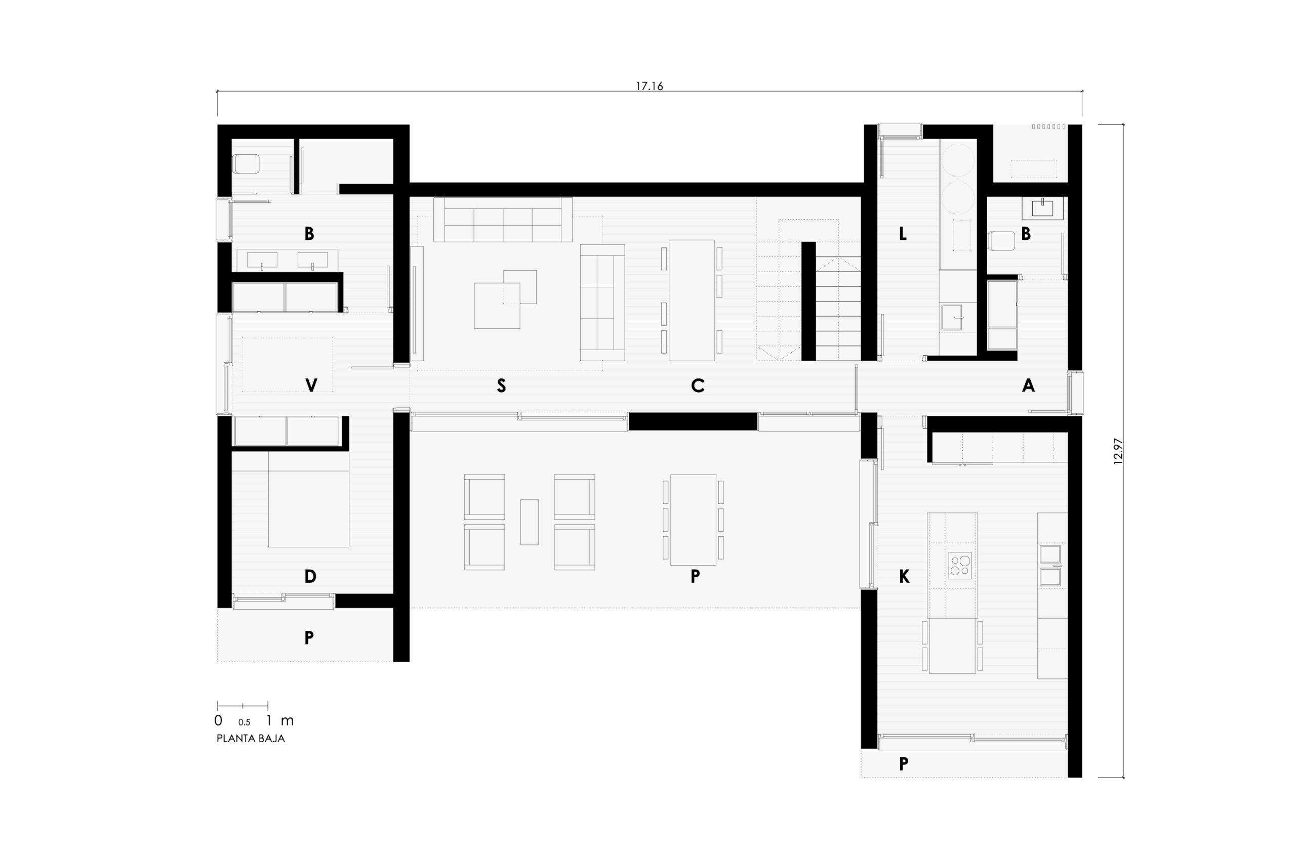
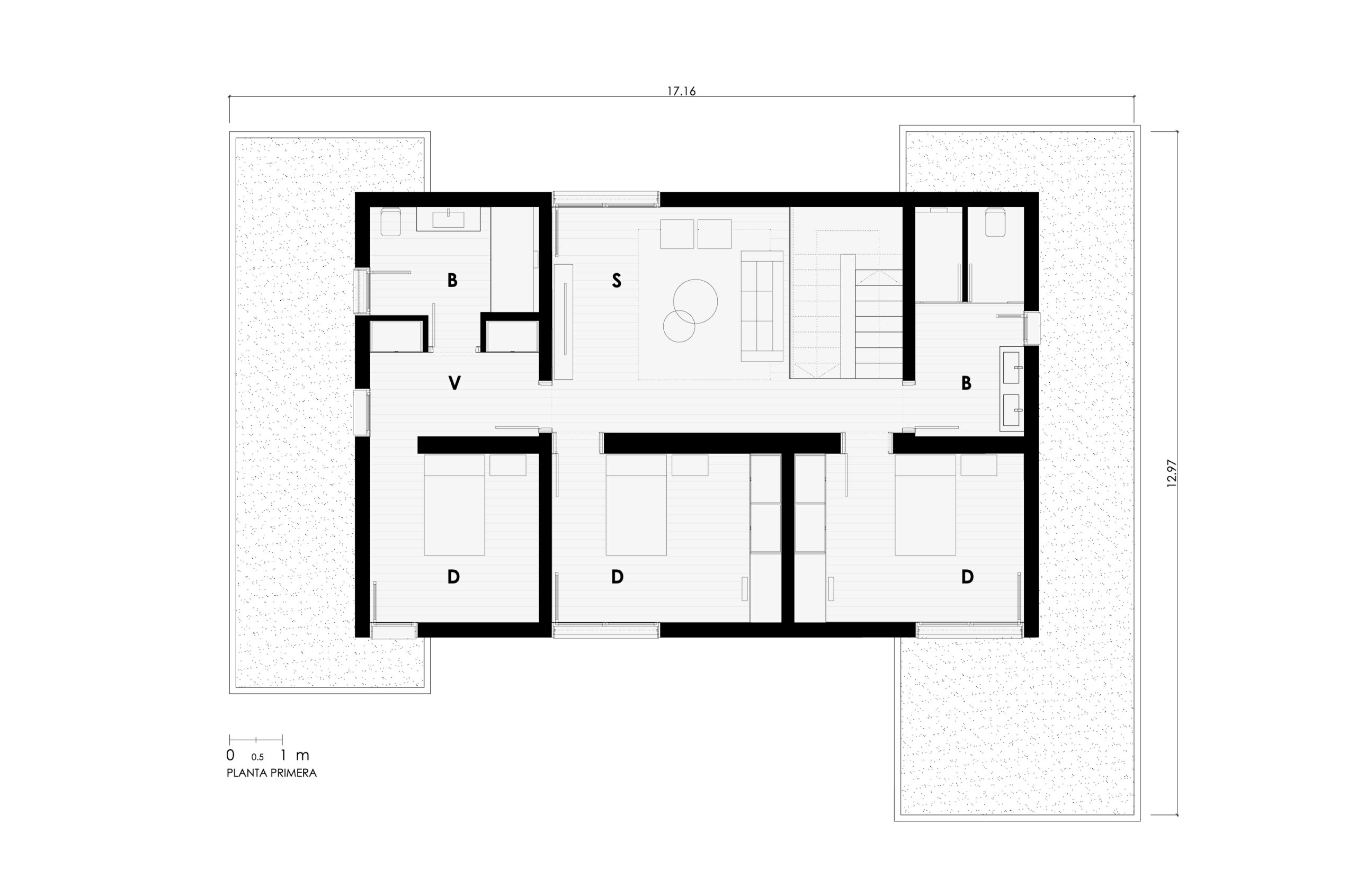
Elégance et espace pour cette maison en béton préfabriquée modèle Menton performante. Imposante maison de 4 chambres à coucher sur deux étages, à laquelle l’agencement des volumes donne sa principale marque de fabrique.
Au rez-de-chaussée, les corps aux extrémités ferment l’ensemble, générant un espace extérieur clos, relié à l’espace jour et couvert par le volume du premier étage. La zone de jour s’articule autour de cet espace pour le plaisir des familles. Toujours au rez-de-chaussée, dans un autre volume, se trouve une grande chambre de maître avec dressing et salle de bains fonctionnelle en suite. Au premier étage, on trouve trois chambres doubles, une salle de bains complète et un espace polyvalent à côté de l’escalier d’accès.
Plans
Rez-de-chaussée
Premier étage
| SURFACE UTILE | 236,00 m2 |
| LOGEMENT | 198,48 m2 |
| PORCHES | 37,52 m2 |
| REZ-DE-CHAUSSÉE | |
| LOGEMENT | 107,12 m2 |
| entrée | 2,28 m2 |
| escalier | 6,78 m2 |
| dégagement | 4,16 m2 |
| salon-salle à manger | 29,97 m2 |
| cuisine | 22,97 m2 |
| buanderie | 8,53 m2 |
| toilette | 2,48 m2 |
| vestiaire | 6,89 m2 |
| chambre parentale | 11,48 m2 |
| salle de bain parentale | 9,16 m2 |
| PORCHES | 37,52 m2 |
| porche salon | 31,62 m2 |
| porche salle à manger | 5,90 m2 |
| PREMIER ÉTAGE | |
| LOGEMENT | 91,36 m2 |
| escalier | 6,78 m2 |
| dégagement | 2,12 m2 |
| salon | 19,64 m2 |
| salle de bain 02 | 7,14 m2 |
| salle de bain 03 | 8,84 m2 |
| vestiaire | 6,34 m2 |
| chambre 01 | 12,28 m2 |
| chambre 02 | 14,22 m2 |
| chambre 03 | 14,00 m2 |
| SURFACE CONSTRUITE | 283,02 m2 |
| LOGEMENT | 245,50 m2 |
| PORCHES | 37,52 m2 |
| REZ-DE-CHAUSSÉE | |
| logement | 173,41 m2 |
| logement invités | 135,89 m2 |
| porches | 37,52 m2 |
| PREMIER ÉTAGE | |
| logement | 109,61 m2 |
| porches | 109,61 m2 |
Modèles de maison associés
English